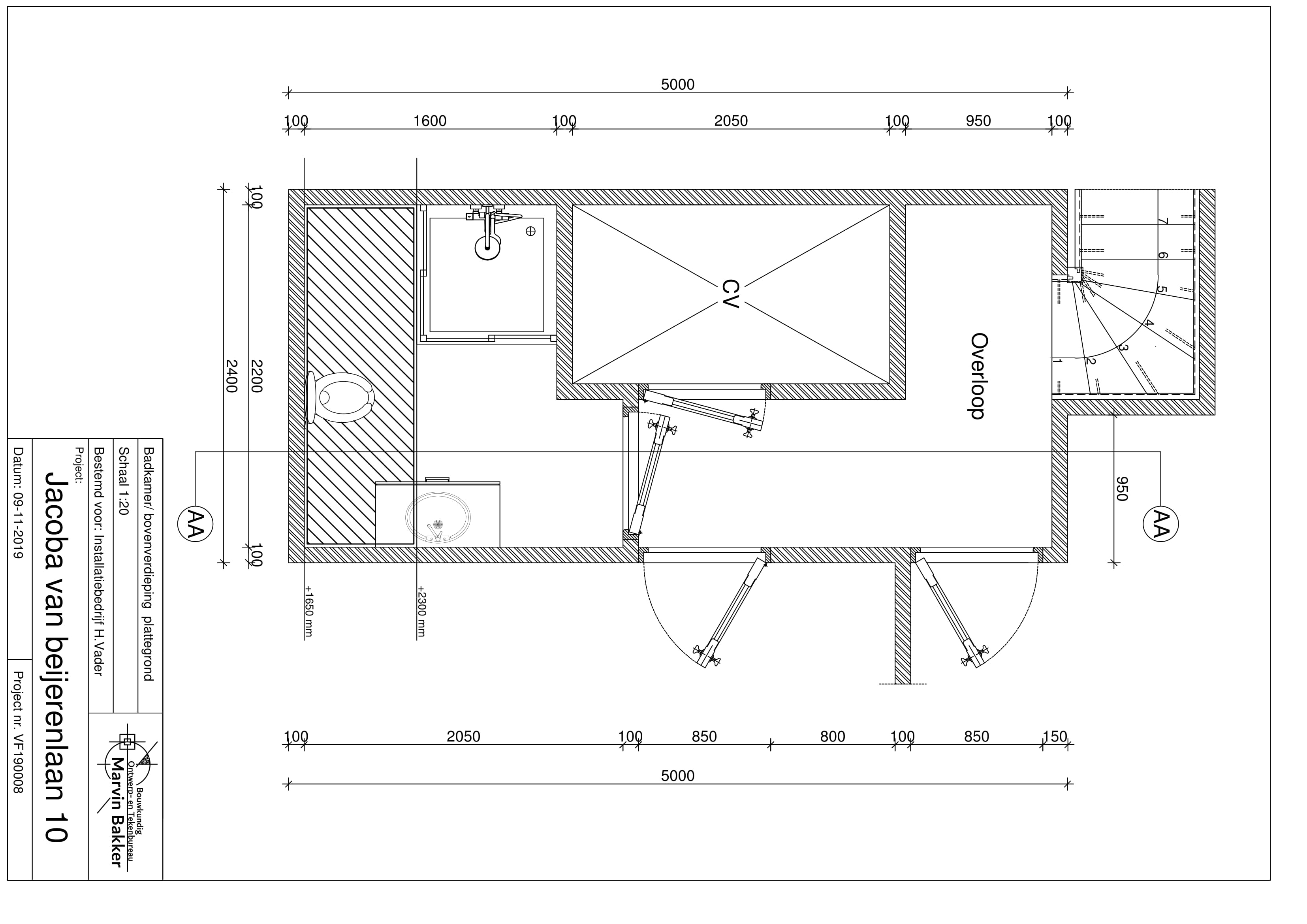
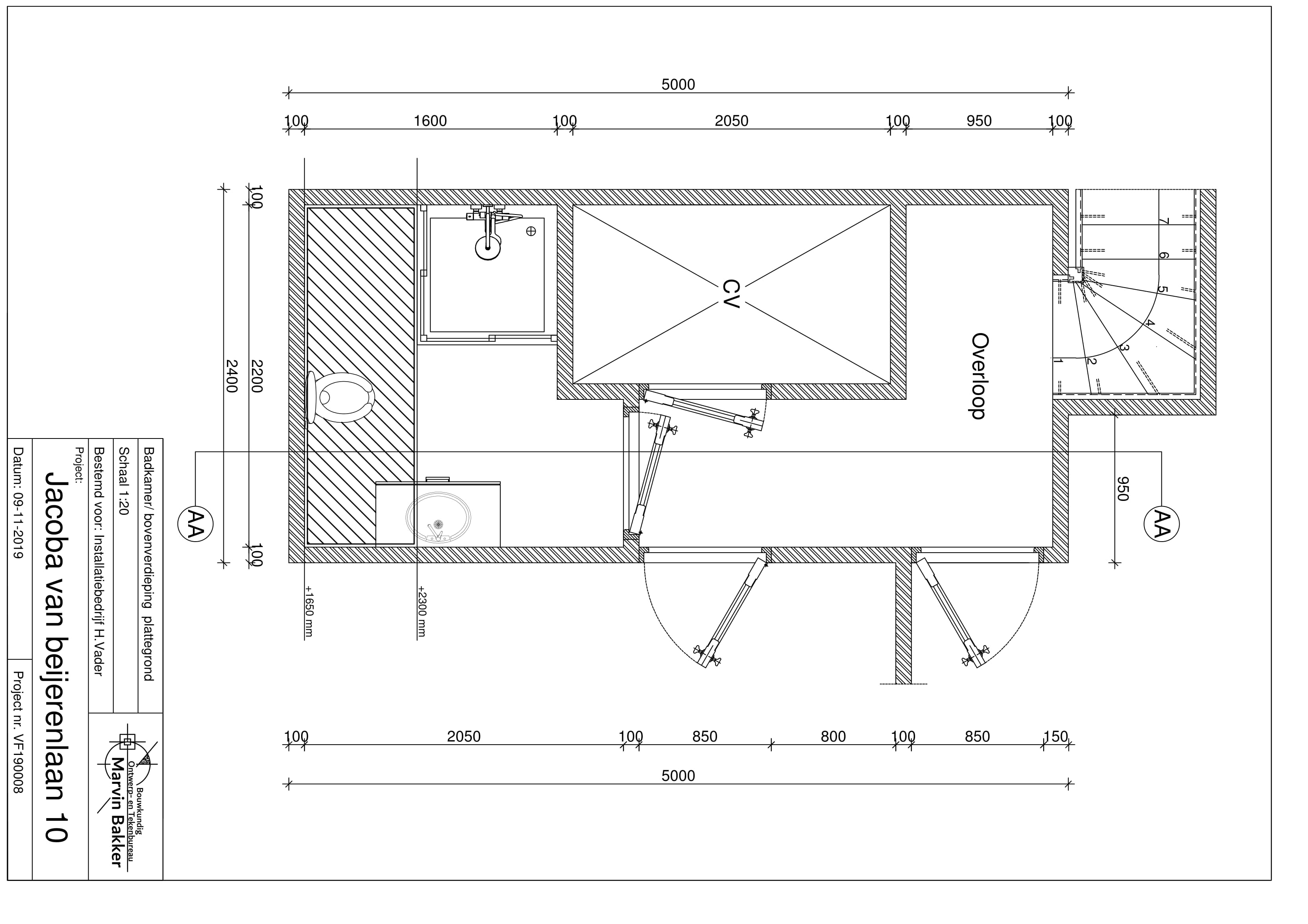
AUTOCAD
Doormiddel van AutoCAD help ik de opdrachtgevers met bouwtekeningen en Bestektekeningen. In dit programma kan je in uiterste precisie bouwkundige tekeningen maken zoals: gevel aanzichten, plattegronden, langsdoorsneden en dwarsdoorsneden incl. maatvoering en benamingen. Deze tekeningen worden voornamelijk gebruikt bij verbouwingen of nieuwe bouwwerken voor de werknemers.






